
SolidWorks je u industriji nameštaja prisutan kao rešenje koje na jednoj platformi omogućava rad u svim fazama projekta ili razvoja novog proizvoda, sa direktnom vezom i informacijama za proizvodnju za sve tipove materijala i tehnologije proizvodnje, za nabavku, prodaju i marketing...
Upoznajte rešenja koja koriste globalne kompanije poput IKEA-e, ili najpoznatiji domaći proizvođači kao što su Gir, Enterijer Janković i drugi..
Jedno okruženje za dizajn, projektovanje i tehničku dokumentaciju za proizvodnju i montažu
JEDAN SOFTVER ZA SVE TIPOVE KOMADA NAMEŠTAJA
Projektovanje pločastog nameštaja i nameštaja od punog drveta
Projektovanje tapaciranog nameštaja
Projektovanje dizajnerskih komada
Projektovanje metalnog nameštaja
Projektovanje pločastog nameštaja
Projektovanje metalne galanterije
Projektovanje elemenata od kovanog gvožđa
Znate li da stezne alate, ali i kontrolnike za savijanje drvenih i metalnih profila i kovanog gvožđa možete da pravite 3D štampom? Saznajte više >
Projektovanje stolarije - prozora i vrata
Projektovanje i rendering enterijera
PROJEKTOVANJE KOMODE SA FIJOKAMA
Jednostavan dizajn i izmene fijokara
Automatizacija dizajna fijoka
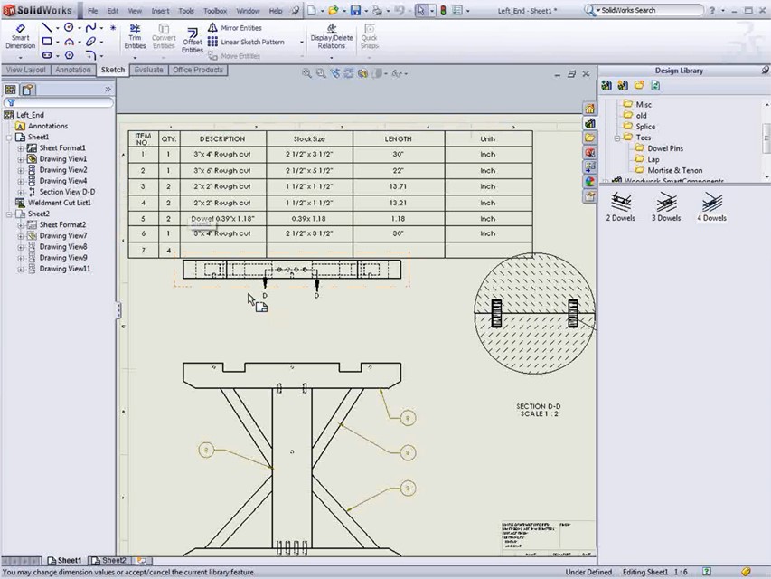
Detaljna krojna lista za proizvodnju
Projektovanje fijokara (VIDEO)
Pogledajte kompletan kratak tutorijal za dizajn fijoka u SolidWorks softveru...
PROJEKTOVANJE RASKLOPIVOG TRPEZARIJSKOG STOLA
Kompletne informacije u 3D modelu
Testiranje funkcionalnosti sklopa
Krojne liste sa crtežima i detaljima
Projektovanje trpezarijskog stola (VIDEO)
Pogledajte kompletan kratak tutorijal za projektovanje rasklopivog trpezarijskog stola u SolidWorks softveru...
PROJEKTOVANJE KOMODE SA POLICAMA
Jednostavno projektovanje komponenti komode
Animacija prikaza sklapanja komode
Provera uklopivosti elemenata - Da li će polica uopšte moći da se ubaci?
Projektovanje komode sa policama (VIDEO)
Pogledajte kompletan kratak tutorijal za projektovanje zatvorene komode sa policama u SolidWorks softveru...
Kako napraviti kompletnu geometriju kompleksnog komada nameštaja samo uz pomoć obične fotografije i SolidWorks softvera?
Neograničeni resursi za učenje i gotovi primeri iz ogromne baze korisnika SolidWorks softvera iz celog sveta
Primer kompletnog tutorijala projektovanja fotelje - Deo 1.
Primer kompletnog tutorijala projektovanja fotelje - Deo 2.
Primer kompletnog tutorijala projektovanja fotelje - Deo 3.
Primer kompletnog tutorijala projektovanja fotelje - Deo 4.
Primer kompletnog tutorijala projektovanja fotelje - Deo 5.
Vidi još primera primene SolidWorks softvera za dizajn i proizvodnju nameštaja
3D projektovanje nameštaja
Jednostavnost SolidWorks softvera omogućava u kratkom roku svoju standardnu 2D dokumentaciju, a zatim i sve nove projekte, prebacite u 3D okruženje i nastavite da radite daleko efikasnije.
Uputstva za montažu
Demonstrirajte svoj profesionalizam tako što ćete generisati kvalitetniju dokumentaciju u odnosu na konkurenciju: marketing materijal, uputstva za montažu, demo video materijale...
Napredan dizajn nameštaja
Sa jednakom jednostavnošću kako kreira dizajn standardnih komada, SolidWorks vam omogućava da se igrate dizajnom nameštaja kada želite da se izdvojite na tržištu.

Pogledajte kako IKEA pravi uputstva za montažu u SolidWorks Composer softveru!
Jedan softver u svim fazama projekta
Primena SolidWorks rešenja U kompaniji GIR

Prezentacija i prodaja
Softver omogućava da se proizvodi, novi proizvodi koji su tek u procesu proizvodnje, pa i samo ideje za nove proizvode, predstave u realističnom okruženju u vidu fotografija (rendera) i video materijala:
- testiraj svoju ideju i interesovanje tržišta - pokaži detaljno i realno svoju ideju, sačekaj prve narubžine pa tek onda angažuj resurse proizvodnje, nabavke, magacina, logistike...
- prodajna komunikacija sa klijentima - pokaži kompletan projekat, varijante rešenja, konačan izgled, kako bi odmah otklonio nesporazume, ponudio dodatne proizvode, ukazao na prednosti proizvoda u čiji razvoj si investirao...
- marketing materijal za sajt, brošure, sajmove, oglase - smanji troškove za kvalitetne foto i video materijale, generiši kvalitetne prezentacije i prodajni materijal odmah u svojoj firmi.

Konfiguracija za brze ponude
Sastavi komplet nameštaja ili ceo projekat opremanja enterijera za jednostavan pregled stavki iz ponude u odgovarajućem prikazu za jednostavnu komunikaciju sa klijentom.

Konfiguracija i varijante proizvoda
Definišite sve detalje svakog od elemenata projekta: izmenite profile, detalje obrade, plastiku, itd.
Međutim, mogućnosti konfiguracije i varijanti iz baze podataka podrazumevaju i složenije zadatke primenom koncepta parametarskog modeliranja:
- definiši broj krila vrata, prozora, ormara, pregrada i automatski će proizvod zadržati dimenzije (preseke) sastavnih elemenata koji ulaze u novu zadatu ukupnu površinu - podela stakla, lučni elementi, raspored polja...

Spemno za realizaciju
Definisali ste kompletnu ponudu, prihvaćena je, i sada iz istog izvora automatski generišete informacije za nabavku, količine i vrste materijala, informacije za proizvodnju, itd.

Automatsko generisanje krojnih lista
S obzirom da je vaš 3D model nosilac svih informacije koje su vam potrebne za ponude i proizvodnju, jednom definisan 3D model na klik prikazuje:
- kompletnu krojnu listu
- informacija za nabavku
- informacije vremena proizvodnje

Uputstva za montažu
3D model će automatski generisati i svu neophodnu dokumentaciju, pre svega uputstvo za montažu i to sa svim neophodnim detaljima, u aksonometriji, crno-belo ili u koloru, itd.

Realizuj svoje ideje bez ograničenja
Kada imate 3D softver ne morate više razmišljati u jednoj ravni i vaši komadi mogu da postanu originalniji i kompleksniji.
Istovremeno, softver će rešiti sve probleme kompleksnije geometrije i jasno generisati informacije za proizvodnju radi preciznog uklapanja bez beskonačnih peripetija kraćenja i šmirglanja svaki put kada pokušate da napravite neki komad kod nije sastavljen samo iz pravih uglova i ravnih površina.
Enterijer Janković

Slika: Testiranje i puštanje na mašinsku obradu prvog komada složenog parapeta filharmonije. Elementi parapeta su modelovani u SolidWorks softveru za dobijanje 3D CAD modela sa svim informacijama neophodnim za proizvodnju.

Solfins rešenja u kompaniji Enterijer Janković - SolidWorks, SolidCAM i Delmia
Foto: Enterijer nove moskovske filharmonije, izvođač - Enterijer Janković
Ostala rešenja iz Solfins ponude za dizajn i proizvodnju nameštaja

3D skeniranje komada nameštaja
Solfins u ponudi ima i 3D skenere za brzo i jednostavno preuzimanje geometrije sa bilo kog komada nameštaja - sa bojama i teksturom!
Takođe radimo i uslužno 3D skeniranje i reverzni inženjering >
Artec LEO - brzo skeniranje tapacirane stolice
Jedini skener koji radi bez kablova, ranca, laptopa
Artec LEO je najsavremeniji 3D skener koji možete odneti na teren, skenirati celu prostoriju i tako uzeti precizne mere i najsloženijih prostora, i to bez potrebe da nosite laptop u rancu, da ste povezani kablovima, uz veliki ekran za praćenje modela da uvek znate dokle ste stigli u procesu skeniranja..
3D štampa u dizajnu i proizvodnji nameštaja
brzo i jeftino do prototipa i alata za proizvodnju
Napravi prototipove spojeva i alate za proizvodnju
3D štampa komada manjih dimenzija
Pored prototipovanja karakterističnih elemenata nameštaja (ručke, šarke, ugaonici, mehanički sklopovi), ovom tehnologijom možete jeftino opremiti radionicu steznim priborom za montažu i zavarivanje, alatima za manipulaciju i zaštitu komada, steznim alatima za mašinsku obradu, itd.
Napravi nemoguće!
3D štampa originalnih dizajnerskih komada
3D štampa može praviti i gotove originalne komade u velikim formatima. Vaše je samo da dizajnom iskoristite pun potencijal ove tehnologije da kreirate komade koji nikad pre nisu viđeni..
Softveri za vaše mašine
CAM rešenja za CNC mašine i robote
SolidCAM programiranje CNC mašina
bilo koji materijal, bilo koja geometrija!
SolidCAM je najpopularniji CAM softver u Srbiji Solfins ima višegodišnje iskustvo u implementaciji CAM softvera za sve tipove mašina, od osnovne 2,5 osne do 5-osne obrade i složenih Swiss-Type mašina i robota.
Delmia programiranje robota
Kad Imate veliki posao koji morate završiti na brzinu
Video: Programiranje robota za proizvodnju elemenata enterijera u kompaniji Enterijer Janković u Delmia 3DExperience softveru. Korišćena je "cloud" verzija koja se može iznajmiti na par meseci - taman dovoljno da završite projekat!
Specijalizovana rešenja za automatizaciju projektovanja nameštaja
SolidWorks SWOOD Design dodatak za projektovanje nameštaja i enterijera
Jednostavno dizajnirajte i kreirajte proizvodnu dokumentaciju pločastog nameštaja i komada od punog drveta

Funkcionalnosti SWOOD dodatka
PROJEKTOVANJE PLOČASTOG NAMEŠTAJA U SOLIDWORKS OKRUŽENJU
- Panel management - upravljajte parametrima panela koje koristite sa uključenim informacijama o tipu panela, materijalu, pa čak i smeru lameliranih ljuski i furnira
- Edge-banding - definišete pravila i geometriju obrade ivica različitih panela
- Connectors - parametarski modeli spojeva panela definisani prema vašem načinu rada, iskustvu i komponentama dobavljača
- SWOOD Box - jednostavno kreirajte kutijaste komade nameštaja od parametarski izmenjivih elemenata, uz prateće informacije za mašinsku obradu kutijastih komada
- Generisanje svih potrebnih podataka i dokumentacije - krojne liste, informacije o komponentama i okovima za magacin i nabavku, liste panela, proračun cene i troškova...

Prednosti SWOOD dodatka
ISKORISTITE EFIKASNOST SOLIDWORKS SOFTVERA ZA VAŠE PROIZVODE
- Projektujte nove komade brže
- Odmah ste spremni za proizvodnju uz garantovanu pouzdanost svih informacija za proizvodnju, primenjena definisana pravila, itd.
- Sačuvajte parametarski lako izmenjive modele koje ćete koristiti kao osnovu za nove projekte
- Poseban kanal izveštavanja iz softvera posvećen drvenariji
DriveWorks rešenja za automatizaciju procesa razvoja i rekonfigurisanje proizvoda
DriveWorks koriste vaši inženjeri ali i klijenti!
SolidWorks platforma
specijalizovani alati za sve poslovne i proizvodne procese

SolidWorks 3D CAD
Razvoj proizvoda, konfiguracije, varijante, tool box (baza modela okova, zavrtnjeva, metalne galanterije), brzi proračun utroška materijala i davanje ponuda..
SolidWorks Composer
Razvoj proizvoda, konfiguracije, varijante, tool box (baza modela okova, zavrtnjeva, metalne galanterije), brzi proračun utroška materijala i davanje ponuda..

SolidWorks Inspection
FAI softver za automatizovan proces kontrole kvaliteta u proizvodnji..
Kako IKEA koristi SolidWorks COMPOSER za pravljenje uputstava za montažu nameštaja?
Na 3DEXPERIENCE World 2021 konferenciji, na glavnoj sesiji tokom prvog dana događaja, tim IKEA Communication AB predstavio je svoj sektor i posebno ceo proces nastanka IKEA uputstava za montažu u SolidWorks Composer softveru.
Šta su imali da kažu pogledajte u zanimljivoj priči na linku:
Matis Ivanjica
Vodeći proizvođač nameštaja odabrao je Solfins rešenja za unapređenje razvoja i proizvodnje i to:
- SolidWorks 3D CAD kao osnovu za svoj dizajnerski, projektni i konstruktivni biro
- SWOOD Design kao dodatak za efikasnije projektovanje nameštaja i enterijera
- SolidWorks PDM kao rešenje za upravljanje dokumentacijom i timskim radom
- SWOOD CAM kao rešenje za programiranje svih CNC mašina za obradu pločevine

















Softverska rešenja za dizajn, projektovanje i proizvodnju nameštaja i opremanje enterijera