Mogućnosti SolidWorks platforme ne završavaju se na projektima procesnih postrojenja, cevovoda i konstrukcija. SolidWorks ide i mnogo dalje, nudeći kompletno rešenje za projektovanje i isporuku celih fabrika sa svim pripadajućim elementima, i to kroz optimizovan i automatizovan proces postavke i razrade svih detalja projekta i kompletne dokumentacije za gradnju, montažu, servisiranje..
Automatizacija projektovanja industrijskih kompleksa
SolidWorks platforma poseduje specijalizovana rešenja za automatizaciju projektovanja velikih sklopova industrijskih objekata sa svim pratećim elementima neophodnim za funkcionalnost i bezbednost takvih prostora.
U videu pogledajte kako izgleda automatsko dodavanje detalja u projekat koji obično oduzimaju mnogo vremena: stepeništa, pomoćne platforme, ograde i merdevine, itd.
Brzo postavite objekat i rasporedite elemente

Velike čelične noseće konstrukcije

Gotovi 3D modeli komponenti - pumpi, fitinga, klima-komora, cisterni

Optimizacija učitavanja velikih sklopova za brži rad
Brzo rasporedite elemente bez grešaka

Jednostavno pozicioniranje sklopova nosećih kanalica za kablovske snopove

Automatsko prepoznavanje i ispravljanje kolizija

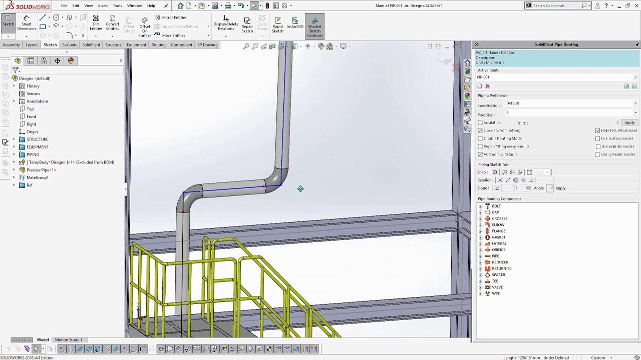
Realistični izometrijski prikazi cevovoda za lakšu kontrolu i komunikaciju
Brzo automatizovano projektovanje cevovoda

Automatsko prepoznavanje tačaka i generisanje fitinga u sklopovima cevovoda

Jednostavno kopiranje kompletnog sklopa cevovoda za multipliciranje pozicija na klik

Kompletan projekat sa svim detaljima i svim neophodnim informacijama za proizvodnju
Reverzni inženjering velikih proizvodnih hala i postrojenja
SigmaNEST rešenja za proizvodnju od limova, cevi, profila, pločastih i šipkastih materijala
Krojne liste / nesting i programiranje CNC rutera, lasera, waterjetova, testera..

Projektovanje fabrika i proizvodnih kompleksa - Plant Design